Projects
About
Contact
Projects
About
Contact
Emmaline
Fitness & News Editorial
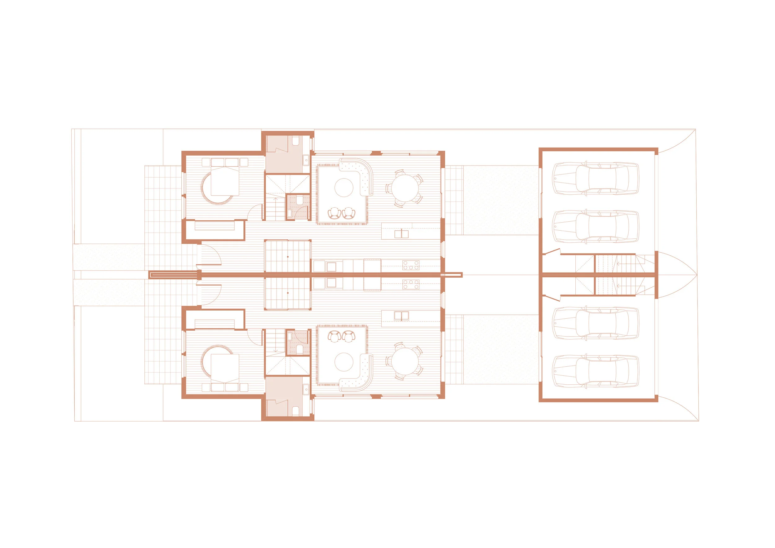
Our dual occupancy with a focus on maximizing natural light and space for modern day living.
All
Emmaline
Dromana
Edithvale
The Avenue
Tivoli apartments
Christmas
Gooch
Tyler
Albert
Grant
Emmaline
Dromana
Edithvale
The Avenue
Tivoli apartments
Christmas
Gooch
Tyler
Albert
Grant